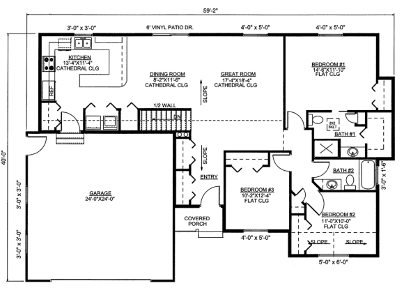
The vibe the Franklin gives off is just simple friendship! This house spans 1,458 square feet and includes a garage, a connected living room, dining room, and kitchen, three bedrooms, and two bathrooms. Perfect for a new family or a retired couple looking for a quiet, peaceful dwelling, the Franklin awaits your call!
The Franklin
Specifications
Waterfront Friendly
1 Floor
3 Bedroom
2 Bathroom
1458 Sq Ft

