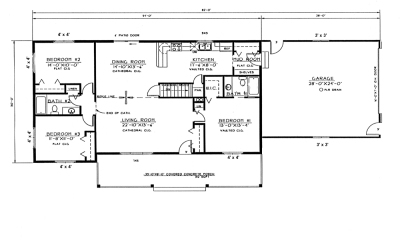
The Holloway is a 1542 sq ft one-story home that can be designed with your vision. Offering three bedrooms and two bathrooms, this home is completely customizable to your needs. Enjoy an attached garage to park your car and for the convenience of extra storage.
Give us a call for updated pricing and optional upgrades!



