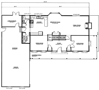
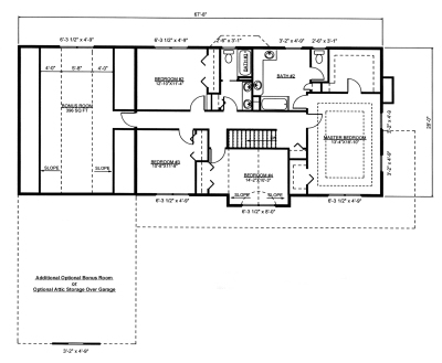
Introducing The Homestead, a beautifully designed 3105 sq ft two-story home that combines modern comforts with classic farmhouse charm. This spacious residence features four bedrooms and 2.5 bathrooms, ideal for families of all sizes. The open-concept layout fosters interaction between the living, dining, and kitchen areas, creating a warm atmosphere for gatherings. The stunning covered front porch enhances curb appeal and offers a relaxing spot to enjoy the landscape. With customizable options, you can personalize The Homestead to fit your unique style, ensuring your dream home meets all your needs. Experience the perfect blend of comfort, style, and functionality in this exquisite farmhouse-style home.
Standard pricing is available for this plan, give us a call for the most recent cost.


