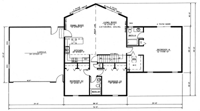
The Lancer embraces bold design choices, inviting homeowners to live their own adventure. This waterfront-friendly plan features two floors, the lower level encompassing a connected dining-living area, a kitchen, three bedrooms, and two bathrooms.
The second story is open to view the activities in the living room below. This floor opens into an expansive loft area, perfect for entertainment, exercise, or sleepovers! What do you want to use this space for? Call us today to make your dream a reality!


