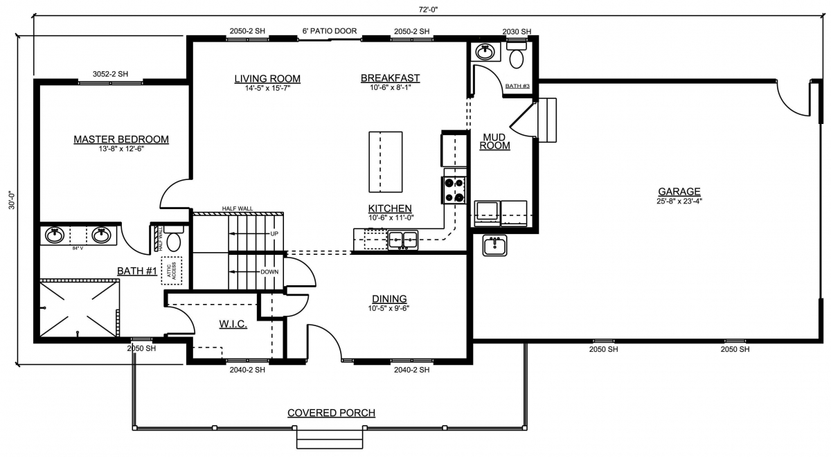
The Shelby is a classic example of a beautiful home built to last. Two entrances mean guests can either use the main entrance to traverse the covered porch and enter the dining room, or enter the mud room after parking their vehicle in the garage. Parallel to the dining room is the kitchen, which opens into the connected living room and breakfast area. The first floor also includes two bathrooms, one of which is connected to the master bedroom.
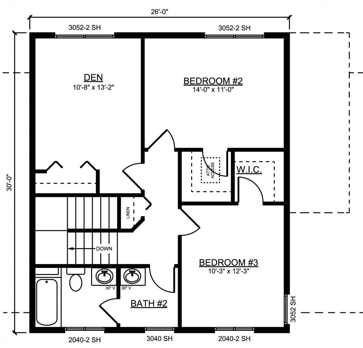
The second floor has two more bedrooms to offer, an optional bedroom/den, and one more bathroom. Attic access and plenty of closet space are also found on this floor.


