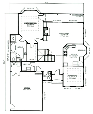
Introducing The Sherwood, a stunning 2-story family home that spans an impressive 2,604 square feet. Perfectly designed for waterfront living, this residence offers a harmonious blend of style and utility. With four spacious bedrooms and two and a half bathrooms, it provides ample space for both relaxation and entertainment. The open floor plan promotes a seamless flow between the living areas, making it ideal for family gatherings or hosting friends. Fresh and modern finishes throughout enhance the inviting atmosphere, while large windows frame breathtaking views of the surrounding landscape. Experience the perfect combination of comfort and elegance in this roomy family haven.
The Sherwood
Specifications
Waterfront Friendly
2 Floors
4 Bedroom
2.5 Bathroom
2604 Sq Ft



