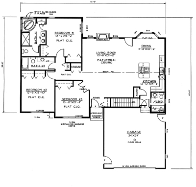
It's hard to believe the Silverwood can fit everything that makes life comfortable into a single floor, but as the saying goes, seeing is believing. Not only is this plan waterfront-friendly, meaning it looks fantastic from the front and the back, but it also checks all the boxes for functionality on the inside.
The Silverwood comes to 1,866 square feet in total, including a garage, full-service kitchen, attached living room and dining room, two standard bedrooms, as well as a bathroom, and finally, this home plan is topped off by an adjoining master bedroom and master bathroom, complete with a whirlpool tub! For comfort, utility, and room, you can't beat the Silverwood.


