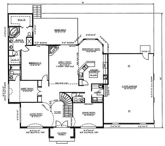
The Stanton is an impressive 2-story home that offers a spacious 2,586 square feet of thoughtfully designed living space. With five well-appointed bedrooms and four and a half bathrooms, this charming residence is perfect for larger families looking for comfort and functionality. The open-concept layout creates a welcoming atmosphere, allowing for seamless transitions between the living, dining, and kitchen areas. Natural light floods the rooms, enhancing the clean lines and modern finishes throughout the home. The attached garage provides convenience and additional storage, making daily life a little easier. Whether you're hosting family gatherings or enjoying quiet evenings at home, the Stanton is designed to meet all your needs.
The Stanton
Specifications
2 Floors
5 Bedroom
4.5 Bathroom
3586 Sq Ft


